Adresse
Vous pouvez nous contacter du lundi au vendredi hors jours fériés
8 rue de voulien 56470 La Trinité-sur-Mer
Téléphone: 06 61 54 01 79
alicelebaud.decoratrice@gmail.com
Horaires: 09:00 - 18.00
Vous pouvez nous contacter du lundi au vendredi hors jours fériés
8 rue de voulien 56470 La Trinité-sur-Mer
Téléphone: 06 61 54 01 79
alicelebaud.decoratrice@gmail.com
Horaires: 09:00 - 18.00
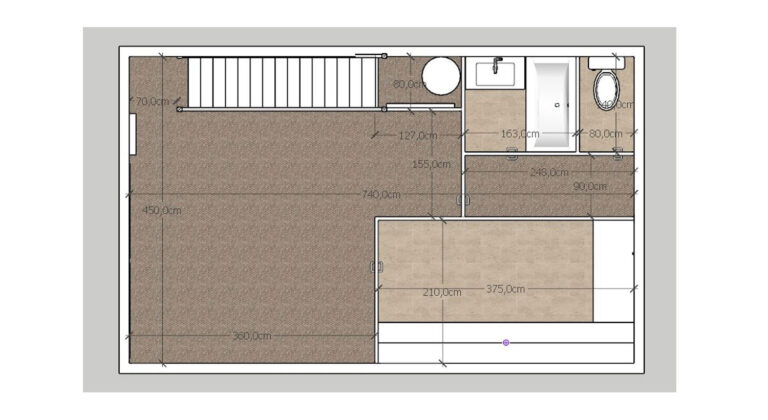
Les propriétaires qui viennent d’acheter cet appartement, souhaitent le RÉNOVER afin de pouvoir l’occuper en tant que maison de vacances. Nous proposons donc une mission clef en main, de la conception à la réalisation du chantier, notre mission est complète. Dans un 1er temps nous réalisons les dessins en 2D & en 3D du futur appartement grâce à une redistribution totale des volumes. Puis, nous faisons réaliser tous les devis des artisans nécessaires au chantier (électricien, plombier, cuisiniste, plaquiste, peintre, carreleur, menuisier…) et choisissons les matériaux de finition adéquates. Enfin, nous pouvons mettre en place le planning du chantier dont nous coordonnons la réalisation en totalité. Pour le suivi du chantier, nous réalisons des visites très régulière durant tout le temps des travaux afin de s’assurer de la bonne réalisation des préconisations et répondre aux artisans (+envoie de photos en cour de réalisation).
(maître d’œuvre la Trinité-sur-mer, architecte d’intérieur la Trinité-sur-mer)
8 rue de voulien, 56470 La Trinité-sur-Mer
06 61 54 01 79
alicelebaud.decoratrice@gmail.com
| L | M | M | J | V | S | D |
|---|---|---|---|---|---|---|
| 1 | 2 | |||||
| 3 | 4 | 5 | 6 | 7 | 8 | 9 |
| 10 | 11 | 12 | 13 | 14 | 15 | 16 |
| 17 | 18 | 19 | 20 | 21 | 22 | 23 |
| 24 | 25 | 26 | 27 | 28 | 29 | 30 |
Copyright © Lerendezvousdeco.com